PROJECT DETAILS
The Blackbird Center and Outdoor Teaching Pavilion
PROJECT DETAILS
Problems, Solutions & Impact
PHASE III
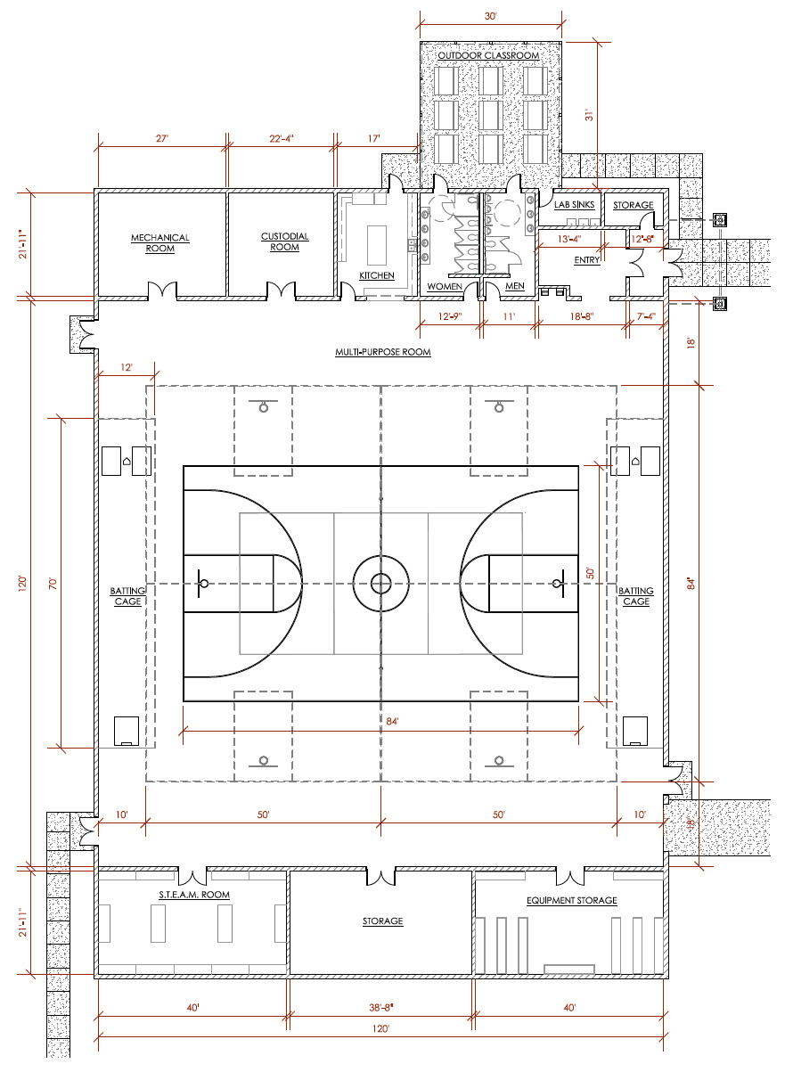
Located west of the south parking lot, will be a versatile 120’ x 164’ facility, supporting everything from indoor team practices to STEAM experiments to archery practices.
The attached 30’ x 30’ Outdoor Teaching Pavilion will provide a dynamic space designed for hands-on learning while serving as a flexible gathering place in an open-air setting.
Together, we can create a brighter future for our students and community.
Please consider your donation and/or pledge payable over 1- 3 years.
Donor Funded
Timing to be determined
The Blackbird Center & Outdoor Teaching Pavilion
CURRENT PROBLEM
Restricted Capacity for OutdoorLearning and Community Space
Limited facilities hinder opportunities forhands-on STEAM activities, art programs,and student-led projects, while alsoconstraining the school’s ability to hostcommunity events and gatherings.
PROPOSED SOLUTION
Build a versatile outdoor classroom pavilion and field house designed to support diverse activities within these program areas, fostering creativity and hands-on engagement:
- STEAM and Agriculture Programs: Create an outdoor lab environment equipped for experiments, engineering projects, robotics, environmental studies, and drone simulations, enabling real-world applications of classroom concepts.
- Art Program: Provide an area for pottery and ceramics, featuring a wood-fired kiln for hands-on artistic exploration, and other techniques that benefit from an open-air setting.
- Music Program: Establish a space tailored for outdoor concerts, recitals, and collaborative performances, offering a distinctive venue for showcasing student talent.
- Year-Round Usability: Incorporate features like heating and adaptive floorspace to enable all-weather opportunities for current programs while accommodating prospective future programs as they develop.
IMPACT FOR PETTISVILLE
- Enhanced Learning Environment: Provide a dedicated, multi-purpose space for outdoor learning and collaborative projects.Increased
- Creativity: Foster creativity and hands-on engagement in STEAM, art, and other programs.
- Community Connection: Enhance opportunities for community involvement and events, strengthening connections between the school and local families.
- Year-Round Access: Create a welcoming environment for year-round use by students, families, and community members
